本文
郡山ユラックス熱海温水プール改修工事
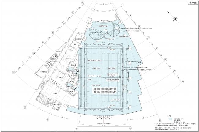
1.位置図
2.設計図

3.事業概要
・工事名:郡山ユラックス熱海温水プール改修工事
・施工場所:郡山市熱海町 地内
・工事概要
●一般用プール改修:ステンレス製 25m×15m
(一般用 4コース 水深 1100 ~ 1300)
(子供用 3コース 水深 800 ~ 900)
●幼児用プール改修:ステンレス製 12m×7m 水深 350 ~ 550
・契約金額:107,734,000円(税込)
・工期:令和7年9月12日から令和8年6月30日
4.工事の目的
・施設の温水プール水槽が老朽化しているため、改修工事を行う。
5.請負業者等
・会社名:株式会社福田建設
・所在地:郡山市横川町字大谷地37番地
・024-944-9455
6.進捗状況(写真)
施工前(令和7年9月12日現在)
施工前(令和7年9月12日現在)
































































